CNES Highbay

Carbon Neutral Energy Solutions Laboratory

Built in 2012, the Carbon Neutral Energy Solutions (CNES) Laboratory Building is designed to foster industry collaboration and support translational and pre-commercial research in clean, low-carbon energy technologies. 

Low-Carbon Features

While the idea for CNES was to build a space that brings together people working on low-carbon energy, Georgia Tech also wanted to make the building itself a demonstration for applied low-carbon energy technologies. The CNES building is a living lab with an innovative “no frills” design and net-zero carbon emissions. The 42,000-square-foot facility is intended to set a new standard for sustainable design for buildings of its type by optimizing passive energy technologies, reducing electricity loads, and maximizing the use of renewable energy.

Aeriel view of CNES

Rooftop Solar Array

The solar array generates 396,000 kilowatt hours per year of electricity, offsetting the building’s energy needs.

Charging Stations at CNES Parking lot with a solar canopy

DER Living Lab on Campus

With rooftop solar arrays, a Stryten Lead BESS system, and EV charging stations in the parking lot, CNES is a hands-on hub for live experiments in distributed energy resources (DER).

LEED Seal on building door

Certified as LEED Platinum

CNES is the first Georgia Tech building to be certified by the U.S. Green Building Council.

Parking lot of CNES building made of permeable surfaces

Permeable Surfaces

The surface of the parking lot is permeable to minimize storm water run-off and collect rain water for repurposing within the building.

construction site with cistern made of cement underground

On-site Cistern

The onsite cistern collects rainwater from the rooftop of the building and the the parking lot pavers for holding and stormwater management.

Top view of CNES

Net Positive Energy

CNES produces more energy than it consumes during peak solar production times. The excess energy is redistributed to campus for consumption.

Research Groups

Research at CNES spans all aspects of the energy cycle for both renewable and fossil fuel based energy sources making it the hub of applied energy research at Georgia Tech. Core research conducted within the lab includes, solar technologies, combustion, gasification, catalysis and bio-catalysis, sustainable chemical processes, as well as carbon capture and sequestration. Some of the key research areas housed within CNES include 

  • High-efficiency combustion systems
  • Alternative fuels and renewable energy systems
  • Biomass gasification
  • Advanced catalytic and gas separations technologies
  • Capture and recycling of carbon from power plants and combustion engines.

Please click the links below to learn more about the individual research groups working out of the CNES building.

Sustainable Aviation Research

Research on clean aviation combustion, sustainable engines, and fuel testing to assess how fuel properties affect combustor performance and emissions.

High-efficiency Combustion Systems

The Scalable Thermal Energy Engineering Laboratory (STEEL) at CNES develops thermal energy conversion technologies and thermal transport technologies.

Chemical Processes for Renewable Energy

Basic and applied problems relating to renewable/clean energy, carbon capture, advanced separations, catalytic membranes, and nanoscale sensors.

Plasma Instrumentation & Engineering Research

Research that focuses on the study of magnetized plasmas for space propulsion, plasma-assisted materials deposition, and energy production.

Heat Transfer, Combustion, and Energy Systems

Research that focuses on concentrating and storing sunlight in a chemical form, i.e., solar fuels

Scalable Fabrication Techniques for Advanced Manufacturing

Research on scalable, roll-to-roll manufacturing processes for use in energy systems (fuel cells), electronics, and environmental applications.

Hydrodynamic Instabilities and Turbulent Mixing

The STAM lab explores fluid instabilities and mixing to advance energy technologies and fundamental flow physics.

Energy-Water Systems

Exploring energy-water challenges through advanced materials, thermal systems, and synergistic phase-change innovations.

Laser Diagnostics, Combustion, Detonations, and Energetic Materials

Research that focuses on using laser diagnostic techniques for studying combustion phenomena, gas-phase and multi-phase detonations, and solid energetic materials

Advanced Catalytic and Gas Separations Technologies

Research that specializes in synthetic chemistry applied to chemical engineering applications in catalysis and separations and capture of CO2 from air.

Facilities

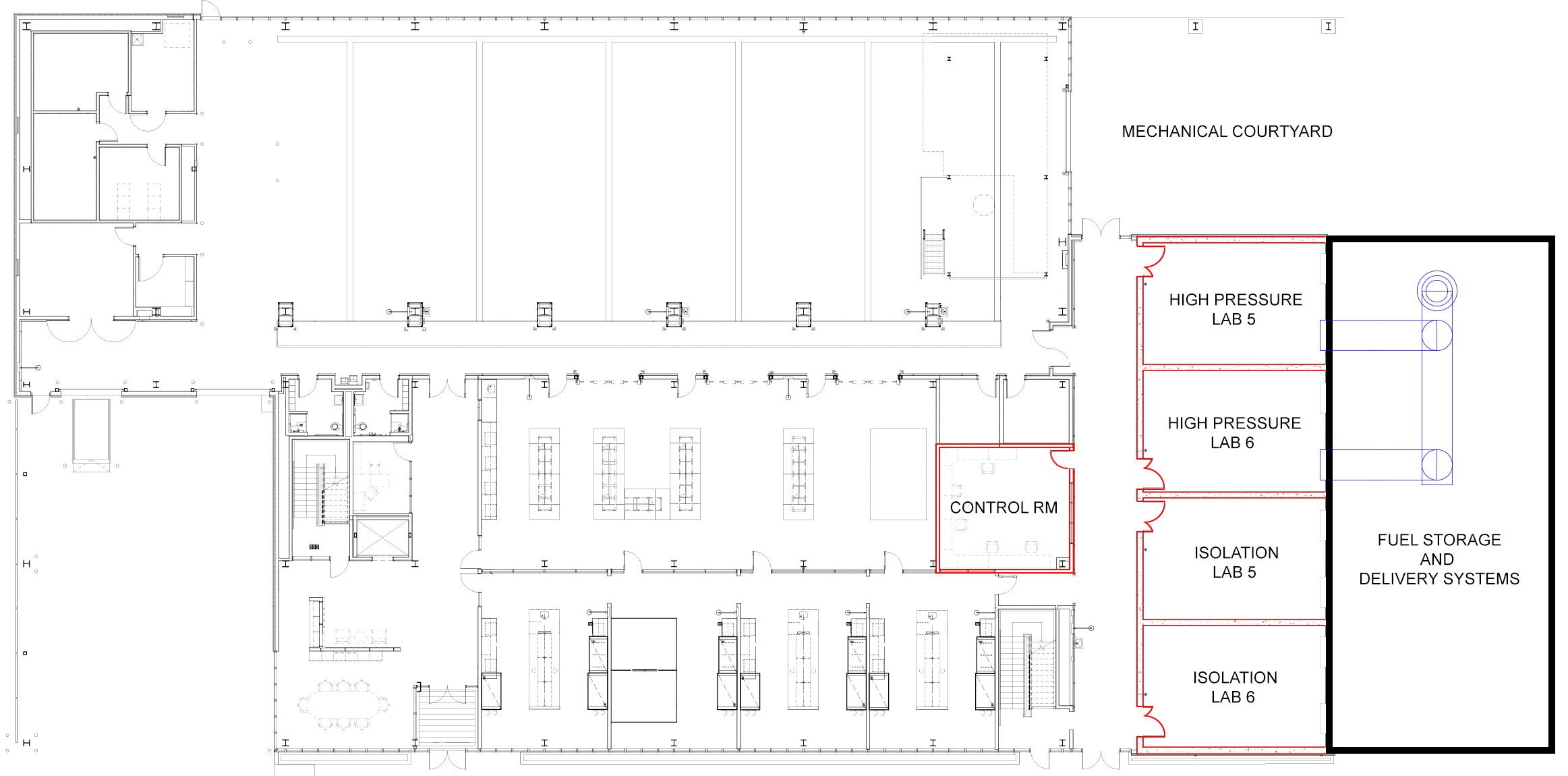
Floor Plan

Equipment

The Carbon Neutral Energy Solutions Laboratory is an academic research facility dedicated to using the latest diagnostic tools for the study of energy technologies. The facility is equipped with an open laboratory with a number of test stations, each equipped with electrical power, intermediate-pressure air supply, pressurized natural gas, and other amenities. The lab space also consists of isolation rooms, which are equipped similarly to the open lab, but which are optically and acoustically isolated from the rest of the lab. CNES has two high pressure labs and two isolation labs.

Process Air System

Process Air Heaters

Fuel Delivery Systems

Nitrogen System

Machine Shop Information

Click the button below to access information related to the CNES machine shop.

CNES Contacts

The CNES building is part of the North Avenue Research Area (NARA) section of the Georgia Tech campus. 

Building Contacts

Carbon Neutral Energy Solutions Lab (CNES) – Building 199

Primary Contact: Tyler Pennel
Title: Building Coordinator – Carbon Neutral Energy Solutions Lab
Affiliation: Strategic Energy Institute | Georgia Institute of Technology
Location: 635 Strong Street, Atlanta, GA 30318 | Room 112 (BTZ)
Email: tpennel3@gatech.edu 
Phone: (720) 442-6313

Secondary Contact: Kristopher Manion 
Title: Lab Manager II – North Avenue Research Area 
Affiliation: College of Engineering | Georgia Institute of Technology
Location: 495 Tech Way NW, Atlanta, GA 30318 | Room 108 (CNES)
Email: kristopher.manion@gatech.edu 
Phone: (678) 596-6976

NARA Complex 

Primary Contact: Kristopher Manion 
Title: Lab Manager II - North Avenue Research Area
Supports Operations at: BTZ, CNES and other COE NARA buildings
Affiliation: College of Engineering | Georgia Institute of Technology
Location: 495 Tech Way NW, Atlanta, GA 30318 | Room 108 (CNES)
Email: kristopher.manion@gatech.edu 
Phone: (678) 596-6976

Ben T. Zinn Combustion Laboratory - Building 151

Primary Contact: Aaron Lynch
Title: Facilities Manager – Ben T. Zinn Combustion Lab
Affiliation: Aerospace Engineering | Georgia Institute of Technology
Location: 635 Strong Street, Atlanta, GA 30318 | Room 112
Email: alynch72@gatech.edu 
Phone: (937) 368-8169 

Secondary Contact: Matthew Kohn
Title: Lab & Facilities Coordinator – Ben T. Zinn Combustion Lab
Affiliation: Aerospace Engineering | Georgia Institute of Technology
Location: 635 Strong Street, Atlanta, GA 30318 | Room 112 (BTZ)
Email: matthew.kohn@gatech.edu
Phone: (404) 807-2702 

Buzzcard Access

All individuals entering the building must have their Buzzcard information registered in the building access database. Please contact Kristopher Manion or Tyler Pennel if you need access. 

All other visitors and guests must be accompanied at all times by a Georgia Tech team member with building access.

Tours

Tours of CNES are available on request and subject to availability and safety and security protocols. Contact Kristopher Manion for more information. Please refer to the CNES Lab Tour SOP for details.

Carbon Neutral Energy Solutions Laboratory